РАСПОРЯЖЕНИЕ ДГИ от 7 июня 2017 г. № 16491 Об утверждении проекта межевания Новорублёвская

Тип статьи:
Авторская

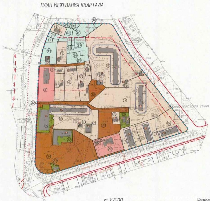
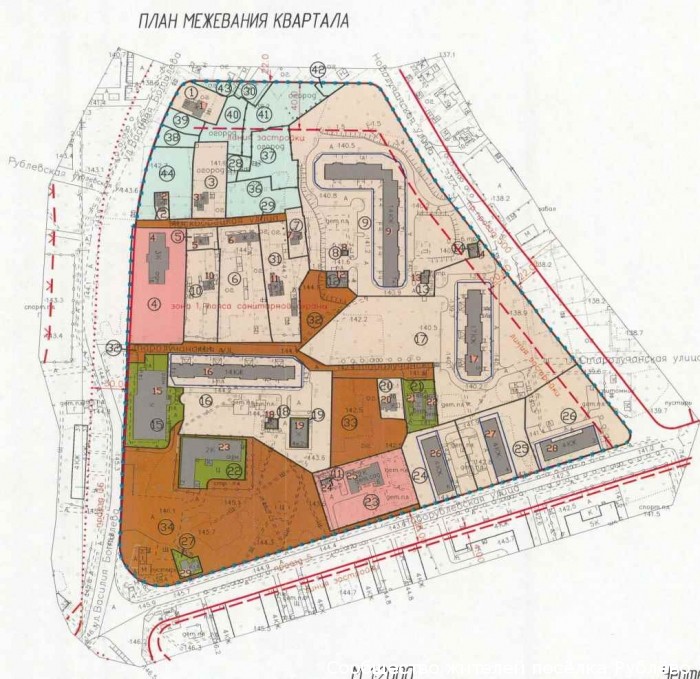
ПРАВИТЕЛЬСТВО МОСКВЫ ДЕПАРТАМЕНТ ГОРОДСКОГО ИМУЩЕСТВА ГОРОДА МОСКВЫ РАСПОРЯЖЕНИЕ О7 июня 2017 г. 16491 Об утверждении проекта межевания территории квартала В соответствии с Земельным кодексом Российской Федерации, со ст. 43, 46 Градостроительного кодекса Российской Федерации, постановлением Правительства Москвы от 20 февраля 2013 г. No 99-ПП «Об утверждении Положения о Департаменте городского имущества города Москвы», ст. 4 Закона города Москвы от 19 декабря 2007 г. No 48 «О землепользовании в городе Москве»: 1. Утвердить разработанный ООО «Мордоврегионпроект» по заказу Департамента городского имущества города Москвы проект межевания территории квартала района Кунцево, ограниченного проектируемым проездом 500, Новорублевской улицей, улицей Василия Ботылева, границей линии застройки, согласно приложению. 2. Контроль за исполнением настоящего распоряжения оставляю за собой

3299
RSS
Нет комментариев. Ваш будет первым!